본문 바로가기

건축 디자인

판교 단독주택 디자인으로 알아보는 요즘 건축 트렌드

요즘 집짓기 트렌드를 알 수 있는 국내 단독주택 건축 디자인

 

"Turning Cube"

 

 

 

판교에 지어진 집입니다.

설계는 건축사 사무소 에이더스(A'DUS)에서 진행했습니다.

 

 

 

건축 매스 구성 다이어그램

 

전문 건축사들이 설계한 집을 볼 때면 어떻게 이해해야 하나 솔직히 어렵습니다.

하지만 잘 보면 힌트를 주시기도 합니다.

이런 다이어그램을 통해 설계의도를 읽을 수도 있고

프로젝트 제목을 봐도 아주 약간은 이해가 됩니다.

 

별품상은 레고 블럭 쌓기로 이해했습니다.

더 적절한 표현을 생각해낼 능력이 안됩니다.

 

 

 

설계사무소의 건축 방향은 공간을 매스의 채움과 비움으로 구성합니다.

솔리드 한 공간이 실 사용 공간이라면

보이드로 열어놓은 공간은 거주자에게 꼭 필요한 공기 같은 역할을 합니다.

 

 

 

통유리를 넘어 수직으로 열린 공간은 하늘까지 시선을 유도합니다.

이런 공간을 탐험하기 원하는 건축가의 욕망이 느껴집니다.

 

 

 

사각형으로 뚫린 공간은 프라이버시를 생각해 절묘한 눈높이를 가집니다.

 

 

 

화려하진 않지만 안정감 있는 컬러의 외부 마감재는 주변과 대비해 튀지 않고 어울리려는 노력이 보입니다.

 

 

 

부담스럽지 않은 외관과 달리 은밀한 내부는 럭셔리 하우스의 본모습을 보입니다.

모던한 취향이 반영된 절제된 건축에 어울리는 집주인의 취향을 같이 보시죠.

 

 

전용 리프트를 이용해 전시할 수 있습니다.

 

포르쉐라는 차인데 조금 비싸다고 합니다. 아주 쬐금 ^^:

주차장에 두기보다는 거실 레벨까지 올려놓고 볼 수 있습니다.

 

 

 

인테리어는 단아합니다.

마치 요즘 지은 호텔 스위트룸을 연상케 하는 디자인

 

 

 

요즘 고급주택 건축 트렌드는 역시 뭐니 뭐니 해도 집주인 취향에 절대적으로 맞춘다는 겁니다.

건축가는 어쩌면 때론 부담스러운 요구에도 예술성까지 생각해야 하는

힘들지만 흥미로운 일을 하는 사람들인 거죠!

 

 

 

 

 

위로 아래로 때론 옆으로 뚫린 공간은 일반 주택에서 부족한 시야의 자유를 줍니다.

터닝 큐브라는 건축 의도가 조금은 이해가 됩니다.

 

 

 

복도를 걸을 때 멀리 도심을 조망할 수 있다는 건

경사진 대지가 장점이 됩니다.

 

 

 

적적하게 외부 시선을 걸러주는 벽체는 구조체로서 뿐만 아니라 가림막 역할도 합니다.

 

 

차가 과연 두대만 있을까요?

 

집주인의 자동차 사랑을 느낄 수 있는 장면입니다.

건축가는 자동차 전시장을 만들어 준 거였군요!

 

 

수직으로 열린 큐브

all images courtesy of 허승범, 노경

 

 

 

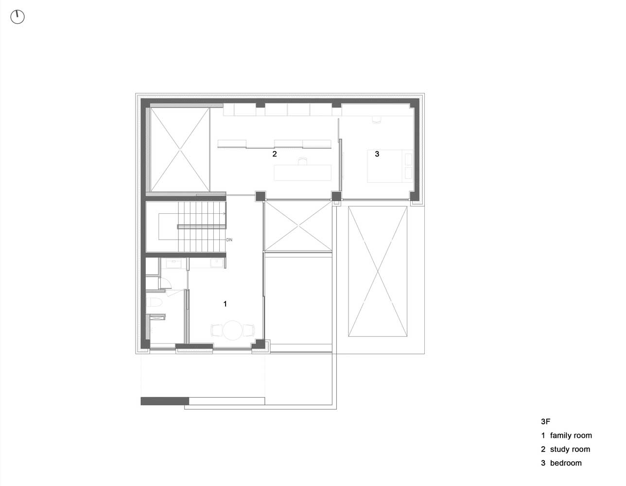
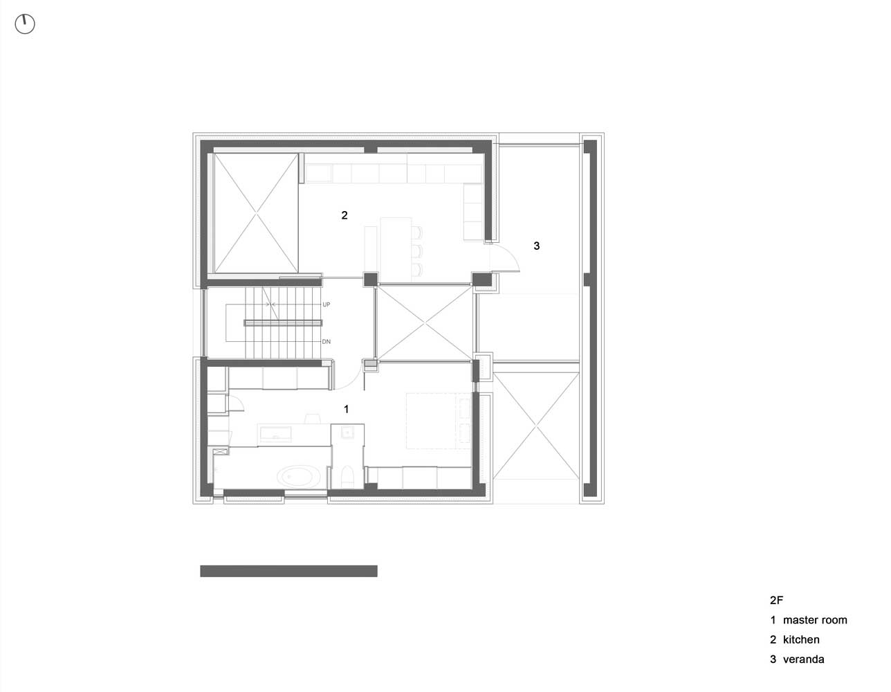
판교 단독주택 건축 평면도

 

 

 

Designd by 에이더스(A'DUS)

Korea

 

별품상

 

판교 주택 이름은 "일행"

 

함께 길을 가는 사람.

일상의 행복.

하루에 걷는 걸음.

 

클라이언트가 집을 짓고 싶었던 이유입니다.

건축가는 그 이유를 최대한 현실화시켜 주는 것이 요즘 건축 트렌드입니다.