본문 바로가기

홈 인테리어

40평 아파트 파트텔톤 인테리어 디자인

핑크와 블루 조합으로 촌스럽지 않게 꾸민 아파트

 

우리나라 사람들이 좋아하는 파스텔컬러.

유럽이나 다른 대륙 같은 경우는 조금 더 채도가 높은 원색을 선호하는 경우가 많았지만

요즘은 동양적인 인테리어가 새로운 트렌드를 만들고 있습니다.

 

 

 

"파스텔 컬러가 동양적!?"

 

어패가 있는 발언을 제가 하긴 한 것이지만

유럽을 예로 들자면 우리가 어릴 적 학교에서 20 색상환을 배울 때

그들은 수백 가지 컬러 팔레트를 배우고 자랍니다.

 

 

 

자연환경도 물론 영향을 미칩니다.

이를테면 파란 하늘과 푸른 초목이 자라는 지중해를 고향으로 둔 사람과 우리나라에서 나고 자란 사람의

색상을 받아들이는 폭은 다릅니다.

 

 

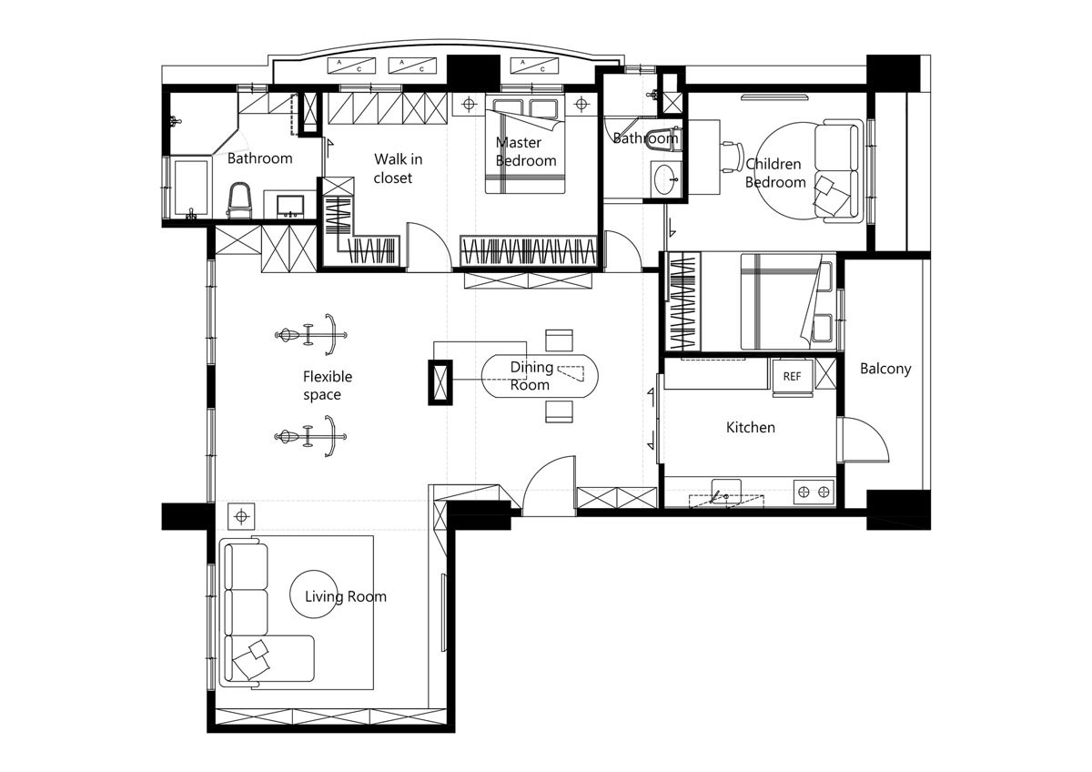
인테리어 평면도

 

 

40평 아파트 인테리어 평면도

 

 

아는 형님이 파리 대학에 유학 중일 때 한국 학생들이 교수에게 자주 듣는 소리가

 

"넌 색감이 참 동양적이구나!"

 

있는 그대로 해석하면 동양풍의 색감을 표현하는구나 할 수도 있고

바꿔 들으면 넌 확실한 색이 아닌 이도 저도 아닌 컬러를 선택했구나! 하고 받아들일 수도 있습니다.

 

 

 

예전에 그 소리를 들었을 때는 아 조금 더 국제적인 컬러 감각을 길러야 되겠구나 생각했었는데

요즘은 생각이 바뀌었습니다.

호불호는 있을 수 있지만 어떻게 쓰이느냐에 따라 그 가치를 더할 수 있다! 그렇게요.

 

 

 

채도가 높지 않고 옅은 파스텔컬러는 펜시해 보이기도 하고 잘 못 쓰면 가벼운 느낌을 줄 수 있습니다.

오늘 소개해 드리는 아파트 인테리어는 핑크와 블루 컬러를 과하지 않게 조합해 모던함을 줍니다.

 

 

 

벽 선반과 디스플레이 캐비넷의 형태는 20세기 바우하우스 시절 모더니즘 전성기 디자인입니다.

물론 당시 인기 컬러는 파스텔톤이 아니었지만 말입니다.

 

 

 

형태는 그러할 수 있지만 원목과 파스텔톤의 잘 계산된 컬러 팔레트는 싼티나지 않고

고급스러움을 더합니다.

 

 

티비 장식장 한쪽에 떨어지는 펜던트 조명 참고하시길

 

잘못하면 금방 질릴 수 있는 싸구려 모델하우스가 될 수 있는 조건이지만

이 아파트가 그렇게 보이시나요?

흰색과 콘크리트 그리고 원목이라는 베이스 컬러 위에 적절한 컬러링으로 그런 우려를 잡았습니다.

 

 

식물화분은 요즘 인테리어에 당연한 요소죠

 

컬러뿐 아니라 텍스쳐와 디테일의 조합이 자연스러움을 더합니다.

전부 매끈하지 않게 파란 소파와 회색의 러그 포인트 벽으로 꾸민 타일의 자잘한 색감들,

이런 부분을 말씀드리고 싶네요.

 

 

 

자칫 가벼워 보일 수 있는 인테리어 분위기를 무게감 있는 소재(타일, 대리석)로 벽면을 장식하고

주방 앞 대리석 아일랜드는 중심을 잡아줍니다.

꾹 눌러준다는 표현이 맞을 듯!

 

 

가는 다리와 올 블랙의 절제된 금속 콘솔

 

컬러를 많이 쓴 듯 보여도 같은 계열의 색들로 혼란하지 않게 절제해 쓴 부분이

역시 고수다! 그런 생각이 들게 합니다.

 

컬러 조합하는 사이트를 알고 싶으신 분들은 요기로 ▼

 

https://starrybox.tistory.com/25

 

촌스럽지 않은 인테리어 컬러 조합 어렵지 않아요

다양한 컬러로 이뤄진 인테리어가 어렵게 느껴지시나요? 우리나라 사람들이 좋아하는 북유럽 스타일 인테리어, 왜 좋아할까요? 비교적 따라하기 쉬워서? 그런 면도 있지만 보통 흰색의 '주조색

starrybox.tistory.com

 

 

파란색 악센트 벽

 

문양이 들어간 흰색 장식 벽의 디테일은 고급스러움을 더하는 요소입니다.

 

 

 

모던한 디자인의 흔들의자와 대비되는 오토만의 등나무 텍스쳐와

이 집 인테리어 주조색을 다 모아놓은 듯한 패브릭 등받이 쿠션이 재미있습니다.

 

 

HAY, AAS32 바체어(스툴)

 

우측에 보이는 심플한 디자인의 바 체어와 락킹 체어(흔들의자)는 같은 흰색의 플라스틱으로

이질감을 주지 않습니다.

 

 

 

투명감 있는 대나무 스툴은 위치 이동을 염두에 두고 사신 것 같아요.

어디에 둬도 잘 녹아들어 어울리는...

 

 

 

무심히 벽에 기댄 거실 인테리어 액자는 컬러는 같은 계열이지만, 채도가 다른 오일페인팅 작품으로

질감도 다르고 고급스러움을 더해줍니다.

 

 

 

주방 아일랜드는 인조석(테라조) 소재로 잘 어울립니다.

 

 

 

테라조는 칩 컬러를 선택할 수 있으니 카탈로그 잘 보시고 시공하시면 좋겠습니다.

 

 

곡선의 식탁 조명

 

곡선은 모던한 디자인 분위기에 차가움을 해소하는 요소로 많이 쓰입니다.

 

 

 

파란색?(녹색)

딱 한 가지로 명확하게 규정하기 힘든 파스텔톤의 의자 컬러는 포인트가 됩니다.

 

 

 

기둥 주위를 둘러싼 흰색의 볼륨은 찬장으로 쓰입니다.

 

 

 

조리공간은 검은색 프레임 창호로 나뉘어 따로 식사를 할 수 있는 식탁과 분리돼 있습니다.

 

 

 

주방 수납장 컬러 예술이지 않습니까?

거실보다는 짙은 채도를 가지면서도 화사한 청록색 컬러를 썼으며,

포인트로 손잡이는 금색이 들어갔습니다.

 

외부와 유사한 패턴의 바닥타일
플로스 테이블 램프(Flos IC T2)

 

부부 침실 인테리어는 원목이 많이 쓰여서 분위기가 조금은 더 안정적으로 느껴집니다.

캐비닛 + 책상 형태가 재미는 있지만 불편해 보이기도 합니다.

책상 위 조명은 플로스(Flos) 제품입니다.

 

 

 

드레스룸 입구가 우리나라 같은 경우는 좁은 경우가 많은데

개방감 있는 구조를 선택했습니다.

 

옷을 잘 정리해 두지 않으면 정신사나울 것 같은 느낌적인 느낌이 들지만

넓은 공간감을 느낄 수 있어 장/단점이 있네요!

 

 

원시적인 느낌의 화장실 문

 

위로 달아맨 레일 도어 디테일이 특이합니다.

 

 

욕실 인테리어
일관성있는 타일 패턴

 

 

별품상

 

파스텔톤 아파트 인테리어 예쁜 집을 소개해 드렸습니다.

어떠셨나요?

별품상은 개인적으로 디자인 문법은 모더니즘 스타일을 따랐고 컬러 파스텔로 구성한 점이

어려운 조합을 이렇게 쉽게 하다니 그런 생각이 들었습니다.