본문 바로가기

홈 인테리어

미니멀 라이프 인테리어, 비움에서 얻는 것

행복을 가까운 데서 찾은 방법 미니멀 라이프

 

주변을 돌아볼 시간 없이 살아가는 현대인들,

하루 종일 일하고 집에 들어와 쓰러져 잠들기 바쁜 일상에서

진정으로 자신을 온전히 쉬게 해 줄 그런 공간을 찾시는 분들이 많습니다.

 

 

좌측 LCW 체어

 

"미니멀 라이프"

 

들어는 봤는데 난 그런 생각도 사치야!

맞는 말씀이라고 생각합니다.

이런 것도 여유가 있어야 하지 그러시는 분들은 이렇게 비우는 인테리어가 있구나 하고 구경만 하세요.

하지만 당신도 언젠간 이렇게 살 날이 올 겁니다!!!

 

 

 

미니멀 라이프 거실을 보고 계십니다.

회색 패브릭 소파와 원목 티 테이블과 같은 계열 컬러의 마룻바닥까지

그리고 임스 라운지체어(Lounge Chair Wood) 하나정도 말고는 뭐 가구라고 할 것도 안보입니다.

 

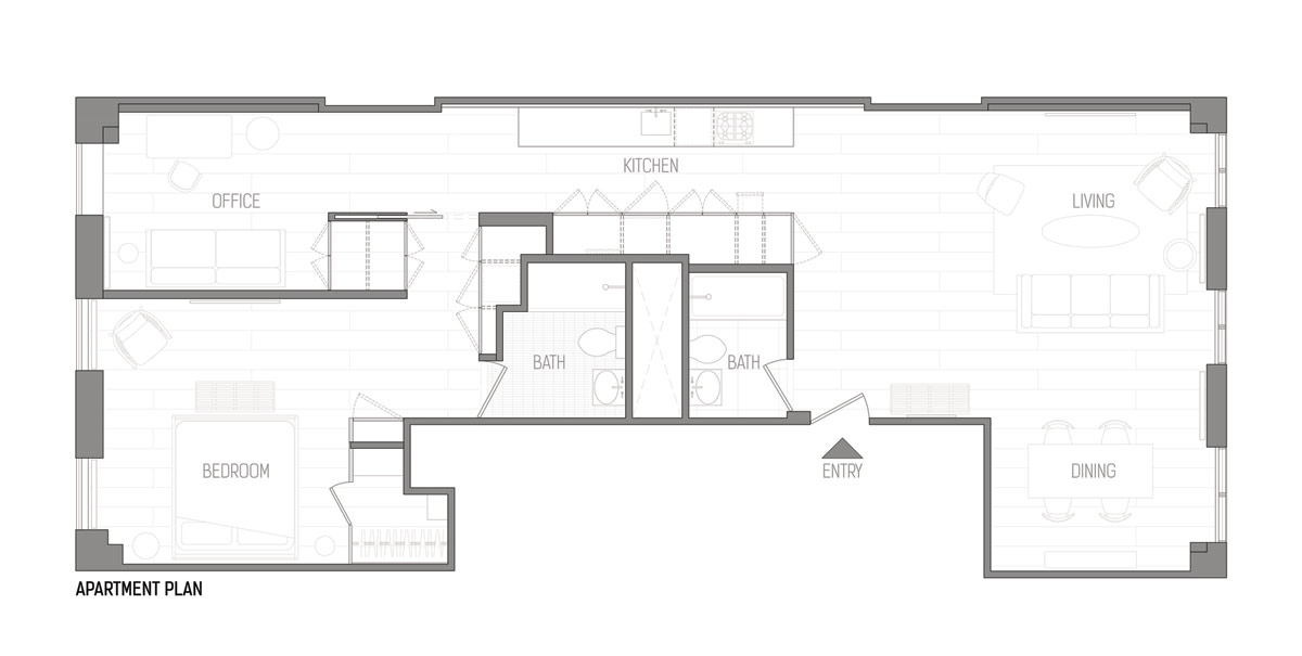
30평 아파트 평면도

 

 

화장실이 있는 코어 박스를 중심으로 디자인한 것 말고는 평범한 30평대 아파트 인테리어 도면입니다.

그래도 어쩐지 집 값이 쌀 거 같지 않아 보이는 포스가 느껴지지 않으신가요?

 

 

푹신해 보이는 높은 파일형 러그

 

이 아파트의 위치는 '뉴욕'입니다.

집주인이 사업가라고 하시는데 집에서만큼은 미니멀 라이프를 위한 인테리어를 하셨습니다.

 

 

 

비움을 실천하는데 돈을 들여 인테리어를 하는 것은 아이러니지만

여러분들 보시기엔 이 집 어떻게 보이시나요?

우리나라 아파트보다 최소 0.5~1m 정도는 더 높은 12ft(3.65m)의 천장은

공간을 더욱 경쾌하게 해 줍니다.

 

 

거실 인테리어

 

작은 벤치와 거실 벽에 걸린 타원형 거울 하나, 단출한 구성입니다.

신발 냄새가 날 것 같은 것만 빼고요^^:

거울이 전 참 마음에 듭니다.

정확한 타원도 아니고 현대 제작물이지만 옛 시대의 곡선을 따와서 은근 분위기가 있습니다.

검은색 프레임으로 단정하면서도 디테일이 하나도 없는 심플함!

 

 

화장실과 욕실이 모인 코어 부분

 

반대편으로 가기 위해 복도가 나있고 작은 회색 싱크대가 보입니다.

여러분 보이시나요?

뭔가 없죠!?

렌지 위에 후드가 없어요.

흔한 선반 하나 안 달려 있고...

뭘 음식을 해 먹고 그래?

 

나가서 사 먹겠다는 이야기죠! ㅡㅡ::

 

 

복도

 

침실 옆에 개인 사무실도 겸하고 있어서 충분히 이해가 가는 부분이긴 합니다.

탕비실 개념으로 이해하셔도 될 듯하네요.

싱크대도 회색을 기본으로 바닥보다 조금 더 짙은 컬러의 나무 마감재로 깔 맞춤했습니다.

 

 

크라운 몰딩

 

천장 모서리 몰딩 보이시죠?

오래된 건물을 인테리어 하면서 과거(1846년)의 흔적을 남겼습니다.

이런 부분 참 좋아요.

전체적으로 얼마나 플랫 하면서도 심심한 디자인의 집입니까?

디테일이 돋보이는 몰딩을 데코레이션 신경 안 쓴 척하면서 꾸민 겁니다.

누군가 좀 알아봐 줬음 해! 그런 느낌

 

 

 

 

딱 떨어지는 흰색의 벽체와 교차하는 주방의 회색 컬러는 인위적인 음영 대비를 이룹니다.

이렇게 하는 이유는 공간의 리듬감을 주기 위함입니다.

 

 

 

30평대 아파트 거실 인테리어가 이렇게 복도까지 만들면서도 좁아 보이지 않는 것은

화장실과 캐비넷이 중앙으로 몰려 있어 공간 효율성이 돋보이는 부분입니다.

 

 

 

손잡이를 최소화해 절제된 모습

 

 

침실 인테리어

 

거실과 마찬가지로 벽장을 심플하게 처리했습니다.

유일하게 처음으로 인테리어 액자가 걸려있는데 그 역시도 집주인의 미니멀라이프 취향이 반영된

무채색 추상화 작품입니다.

 

 

침대

 

가구도 거실에서 봤던 라운지체어와 벤치로 통일성을 주었고,

최대한 옵션이 많아지는 것을 피한 미니멀리스트 디자인을 보여줍니다.

 

 

침대 사이드 테이블

 

침대 사이드 테이블 위에 놓인 심플한 디자인의 꽃병과 향초만으로도 충분합니다.

 

 

스로우

 

호텔 느낌 나는 침대 스로우가 회색으로 깔맞춤 돼 있는데,

사실 안 꾸민 듯 열심히 꾸민 인테리어가 미니멀 라이프 인테리어의 특징입니다.

 

 

 

진정한 미니멀 라이프는 어떤 걸까요?

 

"비움의 삶"

 

꼭 돈이 많아야만 하는 건 아닐 겁니다.

자신에게 충분한 평온함을 주는 공간도 필요하지만

남을 덜 의식하고 자신에게 솔직해지는 것 아닐까 생각하게 됩니다.

 

 

 

책장도 없습니다.

책은 그저 땅바닥에 놓으면 되는 것^^

 

 

욕실, 화장실
작업실로 쓰는 공간

 

침실 옆에는 사무실로 쓰는 공간이 있습니다.

뭐가 없어도 너무 없죠!?

 

 

 

 

 

미니멀 라이프 인테리어 도면

 

코어 부분 단면도
단면도

 

 

 

별품상

 

단순하게 살아가는 방식이 인테리어에 적용되었을 때 어쩐지 허전해 보이기도 합니다.

살다 보면 다른 집들처럼 어지러 지겠지 생각하게 되지만...

도시인의 복잡한 일상과 정리되지 않는 생각들이 집에 돌아왔을 때 조금은 편안해지도록

도와주는 방법으로 이런 미니멀 라이프 인테리어 괜찮다고 생각합니다.